Добро пожаловать на http://vipplan.ru

Випплан Димитровград - это тысячи проектов домов в нашем каталоге!

Вы всегда сможете найти для себя проект дома вашей мечты! Даже если этого не случилось, мы готовы в любую минуту предложить проект индивидуального дома.

Забыли пароль?
Вы еще не регистрировались?

Перейдите по ссылке ниже на страницу регистрации.

Регистрация...

Внимание!!!

В проектную документацию могут быть внесены изменения любой сложности, в соответствии в Вашими пожеланиями!

Полезные статьи

Выбор сайдинга

Прежде чем купить сайдинг, нужно определиться зачем он нужен: для защиты фасада от непогоды, для придания привлекательности внешнему виду дома или для утепления дома.Что же из себя представляет сайдинг? Сайдинг – это материал для облицовки фасада из компаунда. В данной статье мы поможем Вам определиться выбором сайдинга для отделки фасада дома...

Закладка фундамента дома

Закладка фундамента является одним из первых и самых главных этапов строительства любого дома. Все здание опирается именно на эту часть конструкции. Поэтому главная функция фундамента заключается в том, чтобы нести на себе весь вес несущих стен и кровли, а значит предотвращать появление перекоса стен, проседание сооружения, что неизбежно приводит к образованию трещин в стенах здания и в фундаменте....

Проекты домов и коттеджей > Каталог проектов домов > Одноэтажный дом Vg2439

Одноэтажный дом Vg2439

Одноэтажный дом
Зарегистрируйтесь

Проект № Vg2439


Техническое описание
Общая площадь: 93.81 м2
Жилая площадь: 43.53 м2
Высота здания: 7.6 м
Размеры дома: 10.76м×11.76м
Кол-во комнат: 3
Цокольный этаж: нет
Гараж: нет
Мансарда: нет

Kонструкция
Фундамент: монолитная ж/б плита
Перекрытия: деревянные балки
Материал стен: Керамоблок

Архитектурный раздел
Конструктивный раздел
АР+КР - 44 000 (Со скидкой 20%)
Модель проекта одноэтажного дома с размерами здания 10,76 x 11,76 м. Наружная отделка здания – облицовочный кирпич. Фундамент – монолитная ж/б плита. Наружные стены – керамические блоки "Поротерм 44", технологический зазор, лицевой кирпич. Внутренние стены – керамические блоки. Перегородки – кирпич. Пол 1 этажа - пол по монолитной ж/б плите. Чердачное перекрытие - деревянные балки. Крыша многоскатная. Кровля – металлочерепица. Окна — металлопластиковые.
Генплан застройки участка / Паспорт проекта 7000 руб / 10000 руб
Инженерный раздел (полный) 50000 руб
Смета на строительство 25000 руб
Теплотехнический расчет материалов стен Бесплатно
Стоимость проекта со незначительнми изменениями 52650 руб
Стоимость проекта со средними изменениями* 59700 руб
Стоимость проекта со значительными изменениями** 61600 руб

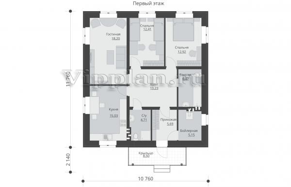
План первого этажа


Прихожая — 5,69 м2
Холл — 13,23 м2
С/у — 4,71 м2
Кухня — 15,03 м2
Гостиная — 18,2 м2
Спальня — 12,41 м2
Спальня — 12,92 м2
Ванная — 6,47 м2
Бойлерная — 5,15 м2
Одноэтажный дом Одноэтажный дом Одноэтажный дом Одноэтажный дом

Модификации проектов

Внесение изменений и привязка к участку строительства

В любой из проектов от компании VIPplan - Димитровград по вашему желанию могут быть внесены изменения в материалы стен, материалы наружной отделки дома, а также будет произведена адаптация проекта под конкретный регион строительства (с учетом грунтов региона, геологических особенностей вашего участка и местных климатических условий) - БЕСПЛАТНО !!! (кроме проектов со скидкой и проектов наших партнеров).

Любой из проектов, размещенных на сайте dimitrovgrad.vipplan.ru мы можем выполнить из требуемых вам строительных материалов: ячеистый бетон (газобетон, пеноблок), керамоблок, кирпич, шлакоблок, бетонный блок, дерево (брус, клееный брус), каркасная технология (деревянный каркас, металлокаркас (ЛСТК)).

Фасад дома и его наружную отделку так же возможно выполнить с применением различных облицовочных материалов: структурной штукатурки, (с утеплителем и без), сайдингом (пластиковый или металлосайдинг), фиброплитами, кирпича.

 
6 Избранные
проекты

Доставка проектов по России: Москва (Московская область), Санкт-Петербург (Ленинградская область), Краснодар, Ростов-на-Дону, Ставрополь, Сочи, Волгоград, Новосибирск, Белгород, Брянск, Воронеж, Саратов, Хабаровск, Астрахань, Нальчик, Владикавказ, Екатеринбург, Тюмень, Самара, Нижний Новгород, Казань, Пермь, Уфа, Челябинск, Красноярск, Ханты-Мансийск, Иркутск, Курган, Оренбург, Омск, Томск, Барнаул, Новокузнецк, Кемерово, Абакан, Чита, Якутск, Южно-Сахалинск, Петропавловск-Камчатский и страны ближнего зарубежья: Белоруссия, Украина, Казахстан